
This partial plan is an example of Design Leverage in Step Two. It is developed from a visual lines analysis of the existing plan as described in "Leverage and Residential Design Part One" (see below blog entry).
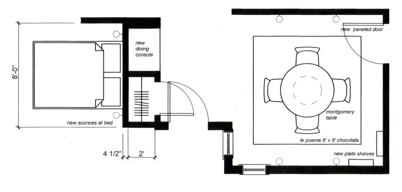
A minimal construction intervention of a closet and a built in dining console improves the entire front end and east half of a house. Notice how the positioning of the console is at the "hub", or the foyer wall. The console now becomes the focus of a location in the floor plan of high visual priority. It serves as the end point of multiple visual lines, improving the daily experience of everyone using the house today, tomorrow or next week.
The improvements extend to how it will feel to wake up, sleep, or read in a Master Bed centered in a comfortably proportioned width of 8'-0."
